You are here

Beds/Baths

3 BR
2 BA
10 Guests

Search Availability

Square Footage: 

1499

Description

This property is situated in an area close to homes or amenities being built; exposure to construction noise and, increased traffic is likely.

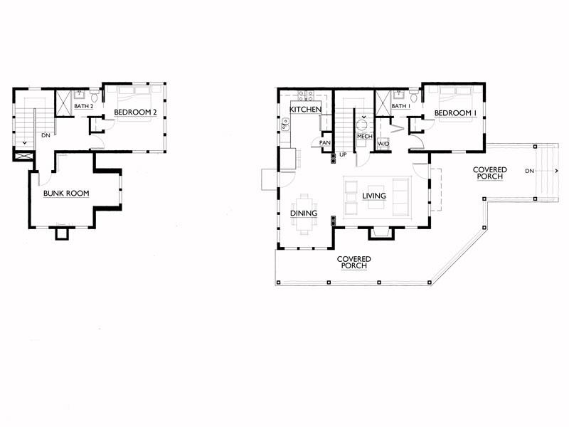
SLEEPING CONFIGURATION

Main Level
Bedroom 1 – Sleeps 2 in king bed, shared Jack & Jill bathroom

Upper Level
Bedroom 2 – Sleeps 2 in king bed, shared Jack & Jill bathroom
Bunk Room – Sleeps 6 in 1 twin/twin bunk + 3 twin beds + 1 twin trundle (Note: bottom bunk converts to king bed)

Flip Flops & Snow Shoes is a brand-new home located on the north shore of Lake Chelan just 1 mile from downtown. What sets this modern farmhouse apart are the many outdoor spaces designed to take full advantage of Chelan’s views and 300 days of sunshine.

FF&SS combines comfortable living with great access to outdoor amenities. The main floor living area opens onto a spacious wraparound porch fronting Vineyard Park. A beautiful two way indoor/outdoor gas fireplace is the focal point of the living room and south facing porch, a treat on cooler evenings. The home is surrounded by comfortable gathering spaces providing options for sun, shade, sunrises and sunsets. The covered porch and patio area is well-lit for night time enjoyment with family and friends. With outdoor seating for 29 people, FF&SS is an entertainer’s dream. A Webber grill and prep station, large cooler box, hot tub and additional propane fire pit for roasting s’mores round out the outdoor amenities.

Inside, guests are greeted by an open floor plan ideal for entertaining. The home was creatively decorated using many reused materials including the dining table legs which were recovered from The Old Spaghetti Factory in Seattle.

The living room offers ample seating for your entire crew. During the winter months, cozy up on the comfortable furniture for an evening of board games in front of a fire. A traversing TV allows for viewing in either the living or dining area, making this an ideal gathering spot for game day. The room is furnished with a smart TV, Blu-ray player and Bluetooth sound bar.

Chefs will appreciate the charming kitchen with modern stainless appliances and farmhouse sink. A blender, food processor, waffle maker, pancake griddle and crockpot are just some of the luxury small appliances you will find in this well-equipped kitchen

The extra wide dining table with seating for 8, can comfortably seat up to 12 with the addition of portable ottomans or chairs located around the home for use at the table.

Master bedrooms on both the main and upper levels feature king beds and cable TV. Both bathrooms have access points from the master bedrooms as well as hallways; shower (upstairs) and tub/shower combo (downstairs). Multiple hairdryers and many mirrors are provided.

The young (and young at heart) will love the bunk room with Samsung smart TV, Blue-ray player, Wii console, Xbox One and library of movies and games. The room has six single beds, one of which easily converts to a king bed, making this home ideal for a two-family vacation or a retreat for three couples.

Closets located around the house also hold additional supplies for your stay including a Pack-n-Play, high chair, extra bedding, towels and additional blankets. There are 2 extra roll out mattresses for placement of your little ones in other rooms. You will also find a full size stackable washer and dryer, iron, ironing board and pool towels.

Complimentary Wi-Fi is provided and supports the capacity to handle many family devices.

A short walk leads you to the Lookout Park with its outdoor pool, community grill, expansive park, pickleball and bocce courts and playground. The Lookout’s private beach cove and 70-slip marina are a quick shuttle ride away.

The Lookout community is growing and there may be construction activity during your stay. Construction hours vary by season but will fall between 7:00 a.m. – 5:00 p.m. on weekdays and weekends. Please contact the Lookout Cottage Rentals at 509.888.7677 with any questions or concerns.

STR: 0245

Amenities

Living

  • Not Pet Friendly
  • Master on Main
  • Fireplace
  • Fully Equipped Kitchen
  • Central Air
  • Heating
  • Linens
  • Highchair
  • Pack & Play

Entertainment

  • Smart TV
  • Complimentary Wi-Fi
  • Games
  • Cable TV
  • DVD / Blu-ray Player
  • Video Game Console

Outdoor

  • Hot Tub
  • Patio
  • Deck
  • Fire Pit
  • BBQ Grill

Availability

Key
#Night Available#Night Unavailable#Arrive Only#Depart Only
October 2025
SuMoTuWeThFrSa
 1
2
3
4
5
6
7
8
9
10
11
12
13
14
15
16
17
18
19
20
21
22
23
24
25
26
27
28
29
30
31
 
November 2025
SuMoTuWeThFrSa
 1
2
3
4
5
6
7
8
9
10
11
12
13
14
15
16
17
18
19
20
21
22
23
24
25
26
27
28
29
30
 
December 2025
SuMoTuWeThFrSa
 1
2
3
4
5
6
7
8
9
10
11
12
13
14
15
16
17
18
19
20
21
22
23
24
25
26
27
28
29
30
31
 
January 2026
SuMoTuWeThFrSa
 1
2
3
4
5
6
7
8
9
10
11
12
13
14
15
16
17
18
19
20
21
22
23
24
25
26
27
28
29
30
31
February 2026
SuMoTuWeThFrSa
1
2
3
4
5
6
7
8
9
10
11
12
13
14
15
16
17
18
19
20
21
22
23
24
25
26
27
28
March 2026
SuMoTuWeThFrSa
1
2
3
4
5
6
7
8
9
10
11
12
13
14
15
16
17
18
19
20
21
22
23
24
25
26
27
28
29
30
31
 
April 2026
SuMoTuWeThFrSa
 1
2
3
4
5
6
7
8
9
10
11
12
13
14
15
16
17
18
19
20
21
22
23
24
25
26
27
28
29
30
 
May 2026
SuMoTuWeThFrSa
 1
2
3
4
5
6
7
8
9
10
11
12
13
14
15
16
17
18
19
20
21
22
23
24
25
26
27
28
29
30
31
 
June 2026
SuMoTuWeThFrSa
 1
2
3
4
5
6
7
8
9
10
11
12
13
14
15
16
17
18
19
20
21
22
23
24
25
26
27
28
29
30
 
July 2026
SuMoTuWeThFrSa
 1
2
3
4
5
6
7
8
9
10
11
12
13
14
15
16
17
18
19
20
21
22
23
24
25
26
27
28
29
30
31
 
August 2026
SuMoTuWeThFrSa
 1
2
3
4
5
6
7
8
9
10
11
12
13
14
15
16
17
18
19
20
21
22
23
24
25
26
27
28
29
30
31
 
September 2026
SuMoTuWeThFrSa
 1
2
3
4
5
6
7
8
9
10
11
12
13
14
15
16
17
18
19
20
21
22
23
24
25
26
27
28
29
30
 

Rates

DatesMin. Nights StayNightlyWeeklyMonthly
12/18/2020 - 09/30/20262$289 - $989$2,023 - $6,743$8,761 - $25,350

Location

Reviews

Genuinely wonderful

Reviewed on 2025-05-27 by Unknown of Liberty Lake, WA United States
Updated on 2025-05-27
Review of stay from 2025-05-09 to 2025-05-12
Overall satisfaction
Services from rental manager
Cleanliness
Location
Property condition
Recommend to Others
If you love green spaces, covered wraparound decks w/many different seating area options for conversations, meals, reading or just peaceful quiet time...if you love a home filled with character & charm...if you love the choice of sitting in your own private hot tub rather than a public one...if you love a VRBO where the owner has cared & thought of everything you might need...THIS IS THE PLACE FOR YOU!

Family wedding

Reviewed on 2023-10-09 by Unknown of Washougal, WA United States
Updated on 2023-10-09
Review of stay from 2023-10-06 to 2023-10-08
Overall satisfaction
Services from rental manager
Cleanliness
Location
Property condition
Recommend to Others
Lake Chelan is beautiful, people seem very friendly and hospitable. It’s nice coming from the Portland area to not see a drug infested crime ridden town. It’s adorable and the Chelan Lookout Cottage community is equally as nice. The flip-flop and snowshoe house was very comfortable and well stocked with everything you need in the kitchen. No need to bring a thing. The beds are comfortable too and the porches are well positioned to the common area and a nice place to hang out in the evening. The house was reasonable but watch out and pay attention to the fees and taxes, which have nothing to do with the owner, but it brings the price up about 35-40%

Homey!

Reviewed on 2024-10-07 by Mike P. of Sammamish, WA US
Updated on 2024-10-07
Review of stay from 2024-10-03 to 2024-10-06
Overall satisfaction
Services from rental manager
Cleanliness
Location
Property condition
Recommend to Others
Very comfortable space. We'd definitely stay here again on our next trip.

Lookout Cottage

Reviewed on 2024-09-13 by Melvin G. of Puyallup, WA United States
Updated on 2024-09-13
Review of stay from 2024-08-26 to 2024-08-29
Overall satisfaction
Services from rental manager
Cleanliness
Location
Property condition
Recommend to Others
AWESOME!! The rental house was beautiful and well equipped. The location was perfect and all the amenities were spot on.

Girls Weekend!

Reviewed on 2025-05-19 by Taylor C. of Sumner, WA US
Updated on 2025-05-19
Review of stay from 2025-05-16 to 2025-05-18
Overall satisfaction
Services from rental manager
Cleanliness
Location
Property condition
Recommend to Others
We went with a group of 6 girls (all in our thirties) in late spring. Our rental was perfect size for our group. The house had all of the things we needed to cook and plenty of towels and blankets. We used the outdoor space a lot! We love being able to walk to the pool and viewing areas of the lake. Loved our stay. Would recommend if you’re doing a similar experience.

Hickey Family Vacation

Reviewed on 2022-08-04 by Scott H. of Seattle, WA United States
Updated on 2022-08-05
Review of stay from 2022-07-29 to 2022-08-02
Overall satisfaction
Services from rental manager
Cleanliness
Location
Property condition
Recommend to Others
It was very good
Manager response on 2022-08-05 - Response from Chelan Lookout Cottage Rentals
Hello Scott, we are glad you chose our community for your family vacation. Flip Flop & Snow Shoes is just a short walk away from the Vineyard pool, hot tub, and many other amenities our community offers. This home features a beautiful outdoor living space with a fireplace so all family and friends can enjoy some quality time together. We look forward to having you stay with us again!

A fun family vacation celebrating a 50th birthday!

Reviewed on 2022-07-31 by Unknown of N/A, CO United States
Updated on 2022-07-31
Review of stay from 2022-07-20 to 2022-07-24
Overall satisfaction
Services from rental manager
Cleanliness
Location
Property condition
Recommend to Others
Flip Flops and Snow Shoes is a beautiful home. This home is perfect for a large group. The kitchen is well stocked which we did use a lot. It has an indoor large table and more than one outside tables to eat and just socialize.
Manager response on 2022-07-31 - Response from Chelan Lookout Cottage Rentals
Linda, we are delighted to hear you had an amazing experience staying in our community. Flip Flops & Snow Shoes is a beautiful home perfect for a large group to enjoy quality time together. This home is well stocked with all the cookware you need to prepare meals for all the family. Thank you for choosing our community. We hope you come back soon!

Delightful Get-a-way

Reviewed on 2022-07-31 by Diane N. of Bellingham, WA United States
Updated on 2022-08-06
Review of stay from 2022-07-24 to 2022-07-29
Overall satisfaction
Services from rental manager
Cleanliness
Location
Property condition
Recommend to Others
This lovely home couldn’t have been more wonderful. The kitchen was well appointed with every thing needed for creating great meals. The bedrooms were lovely. The children’s room was perfect for our three small grandchildren. Everything that was needed was right at your finger tips. I highly recommend this home.
Manager response on 2022-07-31 - Response from Chelan Lookout Cottage Rentals
Hello Diane, we appreciate you for choosing our community. Flip Flops & Snow Shoes is the perfect home for a family getaway. This home is well equipped with everything you need during your stay. The Lookout offers many amenities nearby for all the family and friends to enjoy together. We appreciate you choosing our community! We look forward to hosting you again!

Quick Family Getaway

Reviewed on 2022-10-10 by happy l. of Renton, WA US
Updated on 2022-10-11
Review of stay from 2022-08-21 to 2022-08-24
Overall satisfaction
Services from rental manager
Cleanliness
Location
Property condition
Recommend to Others
the home was perfect. easy to get keys and good orientation information. the house is well appointed clean and well maintained. it's location was convenient for all lake and area activities. the host is outstanding in making us feel welcome and appreciated.
Manager response on 2022-10-11 - Response from Chelan Lookout Cottage Rentals
Hello Happy, Flip Flops & Snow Shoes is the perfect home to plan a memorable getaway with family and friends. This home is a short walk away from The Lookout's best amenities which would include heated pools, a hilltop park area, pickleball courts and so much more. Our mission is to create unique and memorable experiences for all guests. It's great to hear you experienced some great hospitality during your visit. Thank you for choosing The Lookout. We hope to see you soon!

Beautiful house and wrap around porch

Reviewed on 2022-10-10 by Heidi B. of Maple Valley, WA United States
Updated on 2022-10-11
Review of stay from 2022-08-28 to 2022-08-31
Overall satisfaction
Services from rental manager
Cleanliness
Location
Property condition
Recommend to Others
We loved staying in this beautiful house with a fantastic wrap around porch. We enjoyed the outdoor fireplace, fire pit, hot tub, chaise loungers and the open field behind the house.
The inside is beautifully decorated with a great kitchen.
Manager response on 2022-10-11 - Response from Chelan Lookout Cottage Rentals
Heidi, thank you for the stay and the review! We are glad to hear you loved the home and enjoyed all the amenities it offered. Flip Flops & Snow Shoes features a spacious wraparound porch fronting the Vineyard Park, making it perfect to enjoy the evenings with all family and friends. We are so grateful you chose our community. Please come back soon!

It was totally wonderful

Reviewed on 2023-07-26 by Paul H. of Shoreline, WA US
Updated on 2023-07-26
Review of stay from 2023-07-17 to 2023-07-24
Overall satisfaction
Services from rental manager
Cleanliness
Location
Property condition
Recommend to Others
Everything about the place was awesome.

LOVELY STAY

Reviewed on 2023-08-12 by Sheena P. of Olympia , WA United States
Updated on 2023-08-12
Review of stay from 2023-08-04 to 2023-08-10
Overall satisfaction
Services from rental manager
Cleanliness
Location
Property condition
Recommend to Others
Family fun

Wonderful Lakeside Getaway

Reviewed on 2023-08-31 by Unknown of Seattle, WA United States
Updated on 2023-08-31
Review of stay from 2023-08-26 to 2023-08-29
Overall satisfaction
Services from rental manager
Cleanliness
Location
Property condition
Recommend to Others
This neighborhood is absolutely the best way to visit Chelan. They have every amenity you could think of, and the best part is the private beach/marina with boat rentals. Our house was thoughtfully stocked and very cozy, with plenty of space to gather with friends and sleep comfortably. Wouldn’t stay anywhere else in Chelan!

Flip Flops & Snow Shoes Fun

Reviewed on 2019-09-04 by Howard R. of Seattle, WA United States
Updated on 2019-09-04
Review of stay from 2019-08-26 to 2019-09-02
Overall satisfaction
Services from rental manager
Cleanliness
Location
Property condition
Recommend to Others
We had a wonderful, relaxing and fun stay. The house met all our needs, and the waterfront was very nice and convenient.

Flip Flops & Snow Shoes #83

Reviewed on 2020-07-22 by Unknown of Mountlake Terrace, WA United States
Updated on 2020-07-22
Review of stay from 2020-07-15 to 2020-07-20
Overall satisfaction
Services from rental manager
Cleanliness
Location
Property condition
Recommend to Others
The house was beautiful and so well equipped...more things than I have in my own home. Owner was very friendly and helpful. The pools are very nice. The outside sitting areas were fabulous!

My disappointment was: you cannot drive down to the beach nor park at the valet pick up so you must walk from your rental house. House was on opposite corner of beach and with your hills, it is quite a hike especially when you are tired from being at the lake or if walking is difficult for you. It made going to the beach quite a hassle especially when you are carrying things. My suggestion is that all houses need to have a golf cart available to use or allow pick ups at each house with no charge. The beach area is quite small and would be very crowded if a lot of residents went at the same time. The house was wonderful but I'm not sure I would stay at Lookout again.

Hot time in Chelan

Reviewed on 2020-08-02 by Sally D. of Bothell, WA United States
Updated on 2020-08-02
Review of stay from 2020-07-24 to 2020-07-31
Overall satisfaction
Services from rental manager
Cleanliness
Location
Property condition
Recommend to Others
Great amenities and wonderful selection of outdoor spaces on deck and patio. Best stocked kitchen I've ever seen. We liked being close to the pool and there was room for three cars! Perhaps the only slight drawback was the two master bedrooms needed darker shades to keep out the 5am sunlight. The children liked having the expanse of lawn right at the front door. The owner graciously offered a nice selection of garden herbs for the picking! Huge outdoor table for dining on the patio area off the kitchen. We also enjoyed the hot tub. Thank you.

It was like Martha Stewart walked in & snapped her fingers!

Reviewed on 2020-06-14 by LaNae S. of Edmonds, WA United States
Updated on 2020-06-14
Review of stay from 2020-05-26 to 2020-05-31
Overall satisfaction
Services from rental manager
Cleanliness
Location
Property condition
Recommend to Others
This home was truly amazing. It was so immaculate and the decor top notch. I travel extensively and I have never seen a kitchen so equipped. I rented this particular home for the Deck, indoor/outdoor fireplace and the hot tub. We will stay every year and make it a tradition.

Wonderful escape

Reviewed on 2020-10-18 by Elizabeth P. of Newcastle, WA United States
Updated on 2020-10-18
Review of stay from 2020-08-03 to 2020-08-07
Overall satisfaction
Services from rental manager
Cleanliness
Location
Property condition
Recommend to Others
What a wonderful gift to getaway to FlipFlops & Snow Shoes. Such a clean, well-cared for home with every detail included. So we’ll stocked with all the comforts of home. The owner was available to assist while giving us the space to enjoy our time. Highly recommend this property. We will be back!
Manager response on 2020-10-18 - Response from Chelan Lookout Cottage Rentals
Thank you for choosing The Chelan Lookout for your stay. We are glad this home met all your needs and that you enjoyed your stay. We look forward to having you back in the future!

The perfect spot!

Reviewed on 2020-08-12 by Unknown of Snoqualmie, WA United States
Updated on 2020-08-12
Review of stay from 2020-07-02 to 2020-07-06
Overall satisfaction
Services from rental manager
Cleanliness
Location
Property condition
Recommend to Others
This spot was perfect for our two families with small kids. A short walk to the pool, park or lake! Plenty of sleeping options! Fully stocked kitchen! Clean inside, very spacious outdoor area. The owner was helpful and so very kind- she even mailed us our baby monitor free of charge when we accidentally left it at the house. We would stay here again, can’t say enough good stuff.

Wonderful stay

Reviewed on 2020-10-18 by Shirley G. of Seattle, WA United States
Updated on 2020-10-19
Review of stay from 2020-09-04 to 2020-09-07
Overall satisfaction
Services from rental manager
Cleanliness
Location
Property condition
Recommend to Others
We enjoyed an amazing time in this beautiful home. The house is beautifully decorated and filled with anything you could need and more. The outdoor desk and terrace are amazing. The community is beautiful. The house is located really close to the pool. The home owners are really sweet and kind.

Perfect Vacation Home

Reviewed on 2020-10-19 by Donald B. of Edmonds, WA United States
Updated on 2020-10-19
Review of stay from 2020-09-14 to 2020-09-17
Overall satisfaction
Services from rental manager
Cleanliness
Location
Property condition
Recommend to Others
This exquisitely furnished home was absolutely wonderful. So many great amenities and perfect for both couples or families. Close to the pool and in walking distance from a winery. Even though we enjoyed our trip with best friends we'll be back with the grandchildren next time.

Simply the best!

Reviewed on 2021-06-28 by Unknown of Sammamish , WA United States
Updated on 2021-07-11
Review of stay from 2021-06-22 to 2021-06-26
Overall satisfaction
Services from rental manager
Cleanliness
Location
Property condition
Recommend to Others
My family loved our recent stay at Snow Shoes & Flip Flops. We stayed with another family, 10 of us all together and it was plenty of space. The house is well stocked, the location is ideal and the amenities are fantastic. We will definitely be back to enjoy this wonderful spot.
Manager response on 2021-07-11 - Response from Chelan Lookout Cottage Rentals
Hi Sara, It is a pleasure to know that your stay at Snow Shoes and Flip Flops was fun and enjoyable for you and your group. The Lookout offers lots of amenities and options for the whole family. We are so glad that you chose to spend your vacation time with us and we look forward to seeing you again. Best regards, Kathleen Sewell, Guest Services Supervisor

Felt like home

Reviewed on 2021-04-11 by Unknown of Seattle, WA United States
Updated on 2021-04-12
Review of stay from 2021-04-05 to 2021-04-09
Overall satisfaction
Services from rental manager
Cleanliness
Location
Property condition
Recommend to Others
This home was so well equipped with everything you would possibly need that it felt like you were in your own kitchen at home. There were thoughtful touches everywhere in this home: hooks in the shower for hanging up bathing suits to dry, blankets situated conveniently by the door for sitting outside by the fire, melamine dishes for outside dining, and so much more. It is obvious that the owner loves this home and loves having guests to stay.
Manager response on 2021-04-12 - Response from Chelan Lookout Cottage Rentals
Alethea, we are happy to hear that you enjoyed your stay at Flip Flops & Snow Shoes #83. This home is also within walking distance to our Vineyard Pool and Hot Tub, which is the largest pool on our property that is perfect to bring the family to. Thank you for choosing The Lookout and we look forward to having you back in the future! – Ashlee, Front Office and Reservations Manager

Lovin the Lookout!

Reviewed on 2021-07-14 by Holly S. of Newcastle, WA United States
Updated on 2021-08-05
Review of stay from 2021-07-05 to 2021-07-12
Overall satisfaction
Services from rental manager
Cleanliness
Location
Property condition
Recommend to Others
Doesn’t get any better than #83 Flip Flops & Snow Shoes! Second year in this house and loved every minute. The owner is amazing and the house perfect for a large group. The deck provides great space and large grass space is great for activities. Close to the two pools and access to the private beach as well as town, The Lookout makes for the perfect getaway while still having access to town. Lake Surf, Slidewaters, Saturday market in Manson, Sorrentos and Blueberry Hills are a few of our favs.
Manager response on 2021-08-05 - Response from Chelan Lookout Cottage Rentals
Hello Holly, we are happy to hear that you enjoyed your stay at Flip Flops & Snow Shoes! We have so many amenities available on property and at the home, I’m glad that you were able to find and enjoy them! Thank you for choosing The Lookout and we look forward to having you back in the future. – Ashlee DeMers, Front Office & Reservations Manager

Great Stay & Home!

Reviewed on 2021-06-24 by RACHEL L. of Seattle, WA, WA United States
Updated on 2021-07-10
Review of stay from 2021-06-18 to 2021-06-22
Overall satisfaction
Services from rental manager
Cleanliness
Location
Property condition
Recommend to Others
We had a wonderful long weekend away celebrating surviving the craziest school year ever. Home was darling, so well stocked, and nice and cool. We'll be back!
Manager response on 2021-07-10 - Response from Chelan Lookout Cottage Rentals
Hello Rachel, we are happy to hear that you enjoyed your stay at Flip Flops & Snow Shoes! There are so many great things about this home, we are happy to see you were able to discover and enjoy them! Thank you for choosing The Lookout and we look forward to hosting you again in the future! – Ashlee DeMers, Front Office & Reservations Manager

Chelan - Flip Flops and Snowshoes

Reviewed on 2021-07-05 by Unknown of Bellevue, WA United States
Updated on 2021-07-24
Review of stay from 2021-06-27 to 2021-07-03
Overall satisfaction
Services from rental manager
Cleanliness
Location
Property condition
Recommend to Others
Great location a few houses away from the Vineyard Pool and a couple blocks to the pick up location for the Marina and Beach Cove. We were a party of 8 with 2 families each having a bedroom and bathroom suite and the kids all in their own bedroom. The week we stayed was during the record heat wave so excursions outside included lots of breaks back in the afternoon to rest in the AC. Enjoyed Slidewaters and a day on the lake in a Pontoon Boat. Home owner has herbs to share from her garden and the most well stocked kitchen of any rental we have ever stayed at. Can't wait to go back next summer!
Manager response on 2021-07-24 - Response from Chelan Lookout Cottage Rentals
Hello Susanna, we are happy to hear that you enjoyed your stay at Flip Flops & Snow Shoes! The owner of this home has thought of everything when putting their home together, having the fresh herbs is fantastic! Thank you for choosing The Lookout and we look forward to hosting you again in the future. – Ashlee DeMers, Front Office & Reservations Manager

great time

Reviewed on 2021-08-03 by ROBERT D. of Mount Vernon, WA United States
Updated on 2021-08-05
Review of stay from 2021-07-25 to 2021-08-01
Overall satisfaction
Services from rental manager
Cleanliness
Location
Property condition
Recommend to Others
We had a great time. Nice place
Manager response on 2021-08-05 - Response from Chelan Lookout Cottage Rentals
Hello Robert, We are happy to hear that you had a great time at The Lookout at Lake Chelan. We all strive to give every guest the opportunity to have a wonderful time making fond vacation memories. Thank you for choosing The Lookout at Lake Chelan; we look forward to your next stay. Best regards, Kathleen Sewell, Guest Services Supervisor

Very Well Equipped

Reviewed on 2022-04-21 by Francesca G. of Edmonds, WA United States
Updated on 2022-05-05
Review of stay from 2022-04-16 to 2022-04-19
Overall satisfaction
Services from rental manager
Cleanliness
Location
Property condition
Recommend to Others
Cute place. The decor while a bit congested gave a warm vibe. We have stayed at many places and this is hands down the most equipped. Everything was clean. Often we find silverware drawers etc are dirty but not this place! We had a couple issues while on site and staff were very friendly. Great tv options with a selection of dvd’s for kids and adults. The wraparound deck with a see through fireplace was wonderful. A perfect getaway when it’s warm. We enjoyed the hot tub. Staff is fantastic and does maintenance on it daily. This property has a grass area behind it which allows kids plenty of room to run around. Not many of the properties at the Lookout have a grass area. HUGE perk with kids. We would definitely stay again.
Manager response on 2022-05-01 - Response from Chelan Lookout Cottage Rentals
Francesca We are happy to hear that you and you little ones enjoyed your stay at Flip Flops & Snow Shoes. This home is located at a great area where there is plenty of space to run around! The Lookout team always tries their best to give guest a memorable experience. We hope to see you in the near future!

A very nice and pleasant vacation home

Reviewed on 2022-07-13 by Unknown of Seattle, WA United States
Updated on 2023-03-13
Review of stay from 2022-07-04 to 2022-07-08
Overall satisfaction
Services from rental manager
Cleanliness
Location
Property condition
Recommend to Others
We enjoyed our stay in the Flip flops and snow shoes very very much. The house almost has all the amenities you can think of. It locates at a very convenient spot where you can reach the meadow by exiting its back door and the pool is in 2 mins walk distance. The bedroom with a bunk bed blew away our minds. Would like to return and stay longer!
Manager response on 2022-07-15 - Response from Chelan Lookout Cottage Rentals
Hello Chieh-Li, Thank you for your kind review. At Flip Flops and Snow Shoes this home combines comfortable living with great access to outdoor amenities. This home is located in a perfect location with a view of the Vineyard Park and it is also less than a 2 minute walk to the Vineyard pool. We hope you stay with us again for your future trips - The Lookout

Beautiful Homme

Reviewed on 2019-07-11 by Jill W. of Bellevue, WA United States
Updated on 2019-07-11
Review of stay from 2019-06-29 to 2019-07-07
Overall satisfaction
Services from rental manager
Cleanliness
Location
Property condition
Recommend to Others
We had a wonderful time staying at Flip Flops & Snow Shoes. The house is beautifully decorated and very well equiped. I would highly recommened!

Wolfe Stay - Nicol & Servando are Awesome!

Reviewed on 2019-08-24 by Derek W. of Coupeville, WA United States
Updated on 2019-08-24
Review of stay from 2019-08-17 to 2019-08-20
Overall satisfaction
Services from rental manager
Cleanliness
Location
Property condition
Recommend to Others
We experienced a glitch - details aren’t important. What is important is the treatment we received from Servando at the lookout! Servando went above and beyond in all ways!

Nicol’s place “flip flops and snowshoes “ is simply amazing! The only thing more amazing is Nicol herself. She is beyond generous! Treats for kiddos.. suggestions and tips for fun. I could go on and on! Thank you Nicol for willing to let us use your place. We enjoyed every minute! I’m recommending your place to all my friends! PS: thank you for the pics and updates.! See you soon! Derek