You are here

Beds/Baths

5 BR
3.5 BA
16 Guests

Search Availability

Square Footage: 

2800

Description

This property is situated in an area close to homes or amenities being built; exposure to construction noise and, increased traffic is likely.

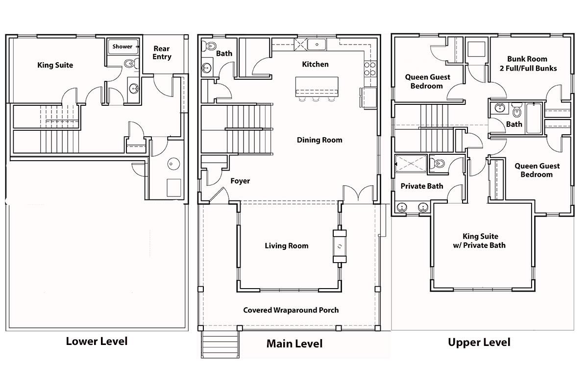
SLEEPING CONFIGURATION:

Upper Level:
Bedroom 1 - sleeps 2 in king bed, ensuite bathroom with shower
Bedroom 2 - sleeps 2 in queen bed, shared bathroom with tub/shower
Bedroom 3 - sleeps 2 in queen bed, shared bathroom with tub/shower
Bedroom 4 - sleeps 4 adults comfortably or up to 8 kids in 4 Full size built-in bunk beds, shared bathroom with tub/shower

Lower Level:
Bedroom 5 - Lower Level: King Suite sleeps 2 in King bed, ensuite bathroom with shower

The Lake Chelan House is located directly on the Vineyard Park sledding hill and close to the Olympic-sized Vineyard Pool, large hot tub and splash pad. Vineyard Park offers expansive lawn space so the kids can play safely while you enjoy a cocktail or a glass of wine on the porch. The Lake Chelan House also offers a private 3-hole putting green so you can practice your short game and keep the kids entertained. The playground, swings, Hilltop pool, and pickleball courts and Lake access pickup points are just a short walk up the trail.

Inside the home, the main floor is completely open concept with a huge kitchen, tons of storage and a walk-in pantry with an extra fridge for your convenience. The kitchen is fully stocked to prepare a quick snack or large family meals. Both Keurig and drip coffee makers are provided as well as an Ice Maker for your convenience. There is seating for 8 at the round dining table as well as 3 barstools at the island. The bar cabinet is stocked with bar tools. Kick back in the living room on the large leather sectional and enjoy the 65” Samsung Frame TV, Sonos Beam and dual-sided fireplace.

The outdoor entertaining space includes a wrap-around covered porch with double-sided gas fireplace, Adirondack chairs overlooking the park, ceiling fans as well as a built-in heater. Sit at the bar top while you keep an eye on the Weber 4-burner gas grill. Relax around the firepit and enjoy a meal outside at the dining table that seats 8 comfortably. Between the porch and the patio, there’s outdoor seating for 24 people, as well as a private hot tub that seats 8. There’s even an outdoor shower so you can rinse off before & after you use the hot tub and after your day at the lake!

Upstairs you’ll enjoy the 13’ vaulted ceilings, an oversized washer & dryer and a separate Nest thermostat for the upper level to ensure your sleeping space is the ideal temperature. All bedrooms offer ceiling fans & Smart TVs with expanded cable packages, beautiful RH beds with Pottery Barn linens and comfortable inner-spring mattresses. The kids will love the XBox One & 65” TV in the Bunk Room. Each of the built-in bunks also have their own light and cubbies with outlets for charging devices and there is a variety of books, games and puzzles in the bunk room closet.

The Lower level offers a private King bedroom with ensuite bathroom, and a work from home desk & folding chair in the closet available for your use. The large foyer has a built-in bench and plenty of hooks for your belongings and in the closet you’ll find pool & beach toys and a wagon for use during your stay. Golf putters in all sizes are provided so you can play a friendly game on the putting green out back. Soccer, football and basketballs are provided in the main floor closet.

A large parking area below the putting green accommodates 4 large vehicles.

The Lake Chelan House doesn’t allow pets; however, the owners have a dog that does stay in the house occasionally.

We hope you enjoy your stay, please follow us on Facebook & Instagram and tag @lakechelanhouse in your posts!

The Lookout community is growing and there may be construction activity during your stay. Construction hours vary by season but will fall between 7:00 a.m. – 5:00 p.m. on weekdays and weekends. Please contact the Lookout Cottage Rentals at 509.888.7677 with any questions or concerns.

STR: 0334

Amenities

Living

  • Not Pet Friendly
  • Fireplace
  • Fully Equipped Kitchen
  • Central Air
  • Linens
  • Wagon

Entertainment

  • Smart TV
  • Complimentary Wi-Fi
  • Games
  • Books
  • X-box One Console

Outdoor

  • Hot Tub
  • Patio
  • Deck
  • Fire Pit
  • BBQ Grill
  • EV Charger

Availability

Key
#Night Available#Night Unavailable#Arrive Only#Depart Only
October 2025
SuMoTuWeThFrSa
 1
2
3
4
5
6
7
8
9
10
11
12
13
14
15
16
17
18
19
20
21
22
23
24
25
26
27
28
29
30
31
 
November 2025
SuMoTuWeThFrSa
 1
2
3
4
5
6
7
8
9
10
11
12
13
14
15
16
17
18
19
20
21
22
23
24
25
26
27
28
29
30
 
December 2025
SuMoTuWeThFrSa
 1
2
3
4
5
6
7
8
9
10
11
12
13
14
15
16
17
18
19
20
21
22
23
24
25
26
27
28
29
30
31
 
January 2026
SuMoTuWeThFrSa
 1
2
3
4
5
6
7
8
9
10
11
12
13
14
15
16
17
18
19
20
21
22
23
24
25
26
27
28
29
30
31
February 2026
SuMoTuWeThFrSa
1
2
3
4
5
6
7
8
9
10
11
12
13
14
15
16
17
18
19
20
21
22
23
24
25
26
27
28
March 2026
SuMoTuWeThFrSa
1
2
3
4
5
6
7
8
9
10
11
12
13
14
15
16
17
18
19
20
21
22
23
24
25
26
27
28
29
30
31
 
April 2026
SuMoTuWeThFrSa
 1
2
3
4
5
6
7
8
9
10
11
12
13
14
15
16
17
18
19
20
21
22
23
24
25
26
27
28
29
30
 
May 2026
SuMoTuWeThFrSa
 1
2
3
4
5
6
7
8
9
10
11
12
13
14
15
16
17
18
19
20
21
22
23
24
25
26
27
28
29
30
31
 
June 2026
SuMoTuWeThFrSa
 1
2
3
4
5
6
7
8
9
10
11
12
13
14
15
16
17
18
19
20
21
22
23
24
25
26
27
28
29
30
 
July 2026
SuMoTuWeThFrSa
 1
2
3
4
5
6
7
8
9
10
11
12
13
14
15
16
17
18
19
20
21
22
23
24
25
26
27
28
29
30
31
 
August 2026
SuMoTuWeThFrSa
 1
2
3
4
5
6
7
8
9
10
11
12
13
14
15
16
17
18
19
20
21
22
23
24
25
26
27
28
29
30
31
 
September 2026
SuMoTuWeThFrSa
 1
2
3
4
5
6
7
8
9
10
11
12
13
14
15
16
17
18
19
20
21
22
23
24
25
26
27
28
29
30
 

Rates

DatesMin. Nights StayNightlyWeeklyMonthly
12/18/2020 - 09/30/20262$385 - $1,734$2,695 - $12,363$12,153 - $47,070

Location

Reviews

Weekend away

Reviewed on 2025-05-30 by Unknown of Auburn, WA United States
Updated on 2025-05-30
Review of stay from 2025-05-16 to 2025-05-19
Overall satisfaction
Services from rental manager
Cleanliness
Location
Property condition
Recommend to Others
It was a perfect spot for all of us. Close to the pool, the house was super clean, all amenities there and the beds were so comfortable. We are already planning our return! Unfortunately, We did leave 2 baby blankets that my daughter sleeps with every night and after calling several times for 2 weeks- they still never returned my call.

Lake Chelan House for the win!!!

Reviewed on 2025-02-20 by Kelly R. of , United States
Updated on 2025-02-20
Review of stay from 2025-02-15 to 2025-02-19
Overall satisfaction
Services from rental manager
Cleanliness
Location
Property condition
Recommend to Others
We had an absolute blast! We’ve stayed at the Lookout multiple times but this was by far our favorite house - everything was so comfortable, house was beautifully furnished and centrally located. In short - we LOVED it and will definitely book this home again!

Stay at The Lookout

Reviewed on 2023-09-12 by Paige M. of MILL CREEK, WA United States
Updated on 2023-09-12
Review of stay from 2023-09-06 to 2023-09-10
Overall satisfaction
Services from rental manager
Cleanliness
Location
Property condition
Recommend to Others
Our experience was great. We stayed at the Lookout for our wedding week and we had the best time. The houses we're beautiful, clean, and great for entertaining and enjoying the amazing weather. Absolutely no complaints.

Fantastic rental set up for entertaining a large group

Reviewed on 2023-05-25 by Pey-Lin C. of Seattle, WA United States
Updated on 2023-05-25
Review of stay from 2023-05-19 to 2023-05-22
Overall satisfaction
Services from rental manager
Cleanliness
Location
Property condition
Recommend to Others
A well appointed, well maintained house, conveniently located next to a pleasant grassy area and easily walkable to the community pool. Easy parking for 4 cars. Our group really enjoyed the spacious gathering spaces and indoor/outdoor flow on one level. Great natural light too. The plantings around the outdoor area makes the space feel more private than other houses around there. Kitchen was adequately equipped with dishes and drinkware for our large group. Only one dishwasher though. There's a small second fridge in the pantry that worked great for chilling drinks. The shared bath upstairs that serves 2 queen bedrooms and a bunk room with 4 full bunks is very small with only one sink and a standard shower. One of the queen bedrooms is a bit tight with a sizable dresser that makes it challenging to walk around the bed. Would suggest adding a hairdryer in each bathroom; we only found one in the whole house. Overall, it's a fantastic rental set up for entertaining, true to the photos.

This house has everything!

Reviewed on 2024-08-09 by Unknown of Kennewick, WA United States
Updated on 2024-08-09
Review of stay from 2024-07-18 to 2024-07-25
Overall satisfaction
Services from rental manager
Cleanliness
Location
Property condition
Recommend to Others
This property was cozy and homey both inside and out with lots of space and lots to do. Plenty of outdoor spaces to re-connect or dis-connect, put a few holes, or simply relax. This home is a dream.

Great Location, Close to Pool!

Reviewed on 2025-01-06 by Lindsay K. of Arlington, WA United States
Updated on 2025-01-06
Review of stay from 2024-12-20 to 2024-12-22
Overall satisfaction
Services from rental manager
Cleanliness
Location
Property condition
Recommend to Others
We had a great time staying in this home, with multiple generations and family connections. The gathering space and kitchen area is perfectly appointed. Everything we could think of was there. I also appreciated the text reminder of events and things happening around the community during our stay. It was also so nice to hear from the property manager that they found something we left behind. And the portal to get that delivered to us was very easy to use. Great attention to detail!

Another wonderful stay at The Lookout

Reviewed on 2021-07-02 by shannon T. of Duvall, WA United States
Updated on 2021-07-24
Review of stay from 2021-06-28 to 2021-06-30
Overall satisfaction
Services from rental manager
Cleanliness
Location
Property condition
Recommend to Others
Checking in is always great. Wish that it was earlier than 4pm since it feels a bit rushed with a less than 24 hour stay if you break it down per day. The homes we have stayed in have all been lovely.

In this particular home I wish the bunk room had a bathroom for the kids. Sharing one bathroom/sink with potentially 2 queen bedrooms and a filled bunk room is a little tight. Having said this, all the appliances and overall atmosphere of the home was wonderful. We were right in the surrounding work zone and they do start early, but we also knew this booking our stay. Love the proximity to the larger pool for the kids. Throughout “Covid” we have stayed at 6 of the homes now on the property and unfortunately told too many of our friends who now love it as well and bookings are filling up with cost as well. I guess that’s a good problem for the rentals:)
Loved the coffee stand/ice cream at the upper pool that hadn’t been open from covid on our past stays. The staff that shuttles golf carts down to the lake have always been great and we love the private area.
Overall the experiences have been wonderful which is why we keep coming back.

Manager response on 2021-07-24 - Response from Chelan Lookout Cottage Rentals
Hello Shannon, we are happy to hear that you enjoyed your stay at The Lake Chelan House! We have so many amenities available on property, I’m glad that you were able to find and enjoy them! Lakeside Coffee House has been an excellent addition to The Lookout. Having coffee/espresso/smoothies/ice cream & shaved ice right on property has been so convenient when craving coffee but not wanting to leave the property. Thank you so much for choosing The Lookout for your many stays and we look forward to hosting you again in the future. – Ashlee DeMers, Front Office & Reservations Manager

Luxury Home with every amenity imaginable

Reviewed on 2021-09-10 by Shannon L. of Everett, WA US
Updated on 2021-09-22
Review of stay from 2021-08-30 to 2021-09-03
Overall satisfaction
Services from rental manager
Cleanliness
Location
Property condition
Recommend to Others
The Lake Chelan House is a luxurious, beautifully-appointed, thoughtfully decorated home with everything guests could possibly need. The kitchen includes a small ice maker, Vitamix blender, 6-burner gas stove, ample dishes & silverware, and a large table.The living room has a sumptuous leather sectional couch, perfect for family movies. The bunkbed room has 4 queens, the upstairs master bedroom is spacious, and the downstairs master with ensuite bedroom is of average size. The outside space is incredible, with a 4-hole putting green, hot tub, fire pit, lots of porch seating. The back of the house faces a grassy hill where kids can play, fly kites, or enjoy the Slip and Slide when the resort sets it up. One of the 2 pools is only a 3-minute walk, and the other pool is about a 7-minute walk. The private access to Lake Chelan is gorgeous (5-minute walk to valet service if needed), with boats for rent, an enclosed water area for kids (age 4+), and a couple dozen umbrella chairs for relaxing as you gaze at Lake Chelan. The resort also has 2 pickleball courts, with paddles and balls provided. Our stay included 2 guest swag bags, each with a bottle of vodka, shot glasses, and 2 coffee cups. This is definitely a high-end, thoughtfully-decorated home. The only disappointments were that the 2 regular bedrooms on the main floor are really small. The queen bed takes up most of the room, and it is somewhat challenging to navigate around it. The dresser in each of the smaller bedrooms take up space, but also allow a suitcase on top & drawer storage, which helped. Also, the house’s air conditioning doesn’t reach to the top floor, so, although there are ceiling fans, our first night was a bit uncomfortably warm. We thought it might be miserable if the temperatures had been above the 75-degree day that we had experienced. Overall, we had an amazing time and appreciated the management team and the owner's attentiveness to guest comfort.
Manager response on 2021-09-22 - Response from Chelan Lookout Cottage Rentals
Hello Shannon, we are happy to hear that everyone enjoyed their stay at The Lake Chelan House! I’m glad that you were able to enjoy the many amenities that we have available on property! I understand that the rooms on the main floor are on the smaller side, so I do apologize for that inconvenience. Thank you for choosing The Lookout and we hope to see you again in the future! – Ashlee DeMers, Front Office Administrator

Perfect stay for a large group!

Reviewed on 2022-06-07 by Samantha W. of Shoreline, WA United States
Updated on 2022-06-09
Review of stay from 2022-05-19 to 2022-05-22
Overall satisfaction
Services from rental manager
Cleanliness
Location
Property condition
Recommend to Others
The Lake Chelan House and the Lookout at Lake Chelan were the perfect place for our long weekend. The house was exactly as advertised and fit our group of 14 perfectly. We had plenty of dishes, cups, and everything was branded to match the house, which we thought was a great touch! The living room, kitchen, and outdoor area flowed together well and made it very easy for our whole party to mingle at the same time. If you're travelling with young children, the primary bedroom and the en-suite on the lower level were large enough for pack n plays, but the upstairs rooms were not. The house sits on a big grassy field and is a very short walk to either pool . The Lookout is only a 3 min drive to the town, a great location. We can't wait to go back!
Manager response on 2022-06-09 - Response from Chelan Lookout Cottage Rentals
Hello Samantha, we appreciate you for taking the time to write us a review. Our community is set at a great location only a few minutes away from downtown Chelan. The Lake Chelan House is one of the bigger homes in the rental program near the Olympic-sized Vineyard Pool, hot tub, and a splash pad so the family can enjoy together. This home also offers a private 3-hole putting green so you can practice your short game and keep the kids entertained. Thank you for choosing The Lookout, and we look forward to hosting you again.

Perfect!

Reviewed on 2022-08-01 by Ernest B. of Fairfax, VA United States
Updated on 2022-08-04
Review of stay from 2022-07-23 to 2022-07-30
Overall satisfaction
Services from rental manager
Cleanliness
Location
Property condition
Recommend to Others
Every feature of this fabulous house created the perfect vacation rental for our family. The kitchen was well stocked with every necessity and lots of extras. The clever design of the outdoor spaces facilitated family gatherings as well as quiet morning coffee on the porch. The Lookout environment is beautiful, as well as with every convenience included, such as shuttles to the lake and compressed air for floaties.

Manager response on 2022-08-04 - Response from Chelan Lookout Cottage Rentals
Hello Ernest, we are delighted to hear you had a great experience staying in The Lookout. The Lake Chelan House is the perfect home for a family getaway. This home is well stocked with everything you need during your stay. Our community provides many amenities all the family can enjoy together. We look forward to having you stay with us again. Please come back soon!

Brilliantly wonderful spacious home

Reviewed on 2022-08-29 by ian w. of washington, DC United States
Updated on 2022-09-29
Review of stay from 2022-07-30 to 2022-08-06
Overall satisfaction
Services from rental manager
Cleanliness
Location
Property condition
Recommend to Others
the Lake Chelan House comfortably suited our multi-family party of 11. It was elegant without being stuffy and posh while being comfy and relaxing...definitely would go back again.
Manager response on 2022-08-31 - Response from Chelan Lookout Cottage Rentals
Hello Ian, The Lake Chelan House is a wonderful home where all family and friends can relax and enjoy quality time together. This home accommodates 16 guests and is very spacious from the inside so all families can feel comfortable. We appreciate you choosing our community. We look forward to your next visit!

Rosalindas Review

Reviewed on 2023-03-22 by Rosalinda B. of N/A, CO United States
Updated on 2023-03-23
Review of stay from 2023-03-03 to 2023-03-06
Overall satisfaction
Services from rental manager
Cleanliness
Location
Property condition
Recommend to Others
The stay was great. The family had a blast here they had quite alot of activities to do , even sledding in the front yard wich my children very much enjoyed. Clean Home and jacuzzi was a plus. Thank you. I would book again.
Manager response on 2023-03-23 - Response from Chelan Lookout Cottage Rentals
Hello Rosalinda, Thank you for letting us know that both you and your family enjoyed your stay. This property is great! Easy hot tub access, and not far from the door for those cold days. We hope to see you in the near future.

Great vacation beautiful house!

Reviewed on 2023-05-21 by Gabriela L. of Redmond, WA United States
Updated on 2023-05-21
Review of stay from 2023-05-15 to 2023-05-19
Overall satisfaction
Services from rental manager
Cleanliness
Location
Property condition
Recommend to Others
The home was very beautiful especially the interiors. We were very happy with the experience and would highly recommend it! Pool was nearby and great for families and kids.